The below error happened when trying to run a Costed BOM report.

8. [*Nested0|AddExtnsToOpt#1064] 

oOpt.AddPieceFromIDWithUnitCost Extrusions(i%, 0&), Extrusions(i%, 1&), Extrusions(i%, 2&), Extrusions(i%, 3&), Extrusions(i%, 4&), Extrusions(i%, 5&), Extrusions(i%, 6&), Extrusions(i%, 7&)


UDM:ALSPEC:REPORT] (0):


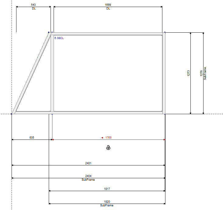
This was the cause of the error, mullion dragged over to the jamb making the head less than zero on the below raked frame.




Once the mullion was moved back to not overlap the head section the Costed BOM report worked.




Please contact Alspec Software Support 1300 760 106 or Soft-tech 1300 139 980 for further assistance.